Tổng quan về dự án Vinhomes Phú Quý
Vinhomes Phú Quý là dự án phức hợp nổi bật được phát triển bởi Công ty cổ phần Vinpearl thuộc Tập đoàn Vingroup. Tọa lạc tại phường Vĩnh Nguyên và phường Vĩnh Trường, TP. Nha Trang, dự án có quy mô gần 34 ha với tổng vốn đầu tư khoảng 7.453 tỷ đồng6. Dự án đã được UBND tỉnh Khánh Hòa bổ sung vào kế hoạch sử dụng đất năm 2023, thể hiện sự ủng hộ của chính quyền địa phương đối với các dự án phát triển chiến lược tại khu vực này.
Với định hướng phát triển đa chức năng, Vinhomes Phú Quý không chỉ là một khu nhà ở thông thường mà còn là một tổ hợp dịch vụ du lịch, khách sạn và thương mại mang tầm cỡ quốc tế. Dự án được quy hoạch một cách bài bản với các khu vực chức năng rõ ràng, đảm bảo sự kết nối hài hòa giữa không gian sống và các tiện ích dịch vụ.
Một điểm đặc biệt của dự án là sự kết hợp giữa diện tích đất liền (khoảng 18,25ha) và diện tích mặt nước biển (khoảng 15,55ha), tạo nên một không gian sống độc đáo gắn liền với thiên nhiên, đặc biệt là biển Nha Trang – một trong những vịnh biển đẹp nhất thế giới.
Vị trí và ranh giới địa lý
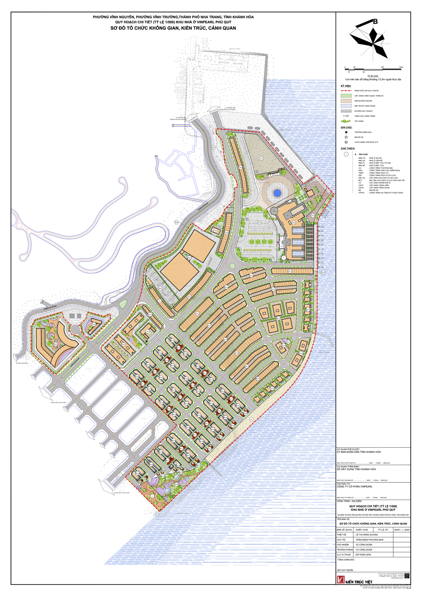
Khu nhà ở Vinhomes Phú Quý sở hữu vị trí đắc địa tại phía Đông Nam thành phố Nha Trang với phạm vi ranh giới cụ thể như sau:
-
- Phía Đông: giáp biển Nha Trang
- Phía Tây: giáp đường Trần Phú và đường Võ Thị Sáu
- Phía Nam: giáp khu đô thị An Viên
- Phía Bắc: giáp khu vực Cảng Nha Trang
Vị trí này mang lại cho dự án nhiều lợi thế đặc biệt. Một mặt, dự án tiếp giáp với biển Nha Trang, mang đến tầm nhìn tuyệt đẹp và không khí trong lành cho cư dân. Mặt khác, dự án nằm cạnh đường Trần Phú – tuyến đường ven biển nổi tiếng của thành phố, giúp cư dân dễ dàng di chuyển đến các khu vực trung tâm và các điểm du lịch nổi tiếng khác trong thành phố.
Đặc biệt, vị trí giáp với khu vực Cảng Nha Trang mang đến tiềm năng phát triển lớn trong tương lai khi cảng này chuyển đổi hoàn toàn sang cảng du lịch quốc tế, tạo thành một cụm du lịch – cảng biển liên hoàn.
Dự án Vinhomes Phú Quý được phát triển với nhiều mục tiêu chiến lược quan trọng, đáp ứng nhu cầu phát triển của thành phố Nha Trang trong hiện tại và tương lai.
Tầm nhìn và mục tiêu chiến lược
Vinhomes Phú Quý hướng đến việc xây dựng một khu phức hợp nhà ở kết hợp dịch vụ du lịch, khách sạn và thương mại dịch vụ với quy mô tầm cỡ quốc tế. Trong giai đoạn đầu, dự án sẽ phục vụ cho các khu du lịch ven biển và đảo lân cận, tạo thêm nguồn cung chất lượng cao cho thị trường du lịch Nha Trang.
Trong tương lai, khi cảng Nha Trang hoàn tất việc chuyển đổi sang cảng du lịch quốc tế, dự án sẽ kết hợp với cảng để hình thành một khu vực trung tâm đô thị du lịch và khu vực cảng đầu mối du lịch biển. Sự kết hợp này đảm bảo phù hợp với định hướng chiến lược và cấu trúc phát triển chung của thành phố, tạo nên một điểm nhấn quan trọng trong bản đồ du lịch Nha Trang.
Nguyên tắc phát triển bền vững
Vinhomes Phú Quý được định hướng phát triển dựa trên các nguyên tắc bền vững:
Thứ nhất, dự án hướng đến việc xây dựng một khu quy hoạch mới hiện đại, đồng bộ, đảm bảo phát triển trong tương lai về cả hạ tầng kỹ thuật và hạ tầng xã hội. Việc khai thác quỹ đất được thực hiện một cách hợp lý, tăng hiệu quả sử dụng đất, đồng thời đảm bảo tỷ lệ xây dựng phù hợp không gây ảnh hưởng đến môi trường biển.
Thứ hai, dự án chú trọng đến việc tổ chức và định hướng xây dựng hệ thống hạ tầng kỹ thuật mới, đồng bộ, hiện đại và tương đồng với hệ thống hạ tầng của khu vực lân cận, đặc biệt là khu vực đường Trần Phú. Điều này đảm bảo tính khả thi và kết nối hạ tầng với các khu vực xung quanh.
Thứ ba, không gian kiến trúc, cảnh quan của dự án được tổ chức hài hòa với khu vực ven biển và các dự án lân cận, đóng góp vào việc nâng cao giá trị cảnh quan kiến trúc đô thị ven biển và dọc trục đường Trần Phú. Đồng thời, dự án cũng sẽ có hình thái đặc trưng riêng kết hợp với văn hóa bản địa, tạo nên bản sắc độc đáo cho khu vực
Quy hoạch sử dụng đất
Khu vực quy hoạch dự án Vinhomes Phú Quý có diện tích 338.007,17m², được phân bổ thành nhiều khu vực chức năng khác nhau, phục vụ nhu cầu đa dạng của cư dân và du khách.
Phân khu chức năng và tỷ lệ phân bổ
Dự án được phân chia thành hai khu vực chính là đất dân dụng (chiếm 72,54%) và đất ngoài dân dụng (chiếm 27,46%). Trong đó:
Đất dân dụng (245.190,70m²) bao gồm:
-
-
-
Đất nhóm nhà ở (76.140,61m², chiếm 22,53%), trong đó có đất nhà ở xã hội (10.309,68m²), đất nhà ở thấp tầng gồm nhà liên kế, biệt thự tứ lập và biệt thự đơn lập (57.300,70m²).
-
Đất ngoài nhóm nhà ở (169.050,09m², chiếm 50,01%), bao gồm đất thương mại dịch vụ, đất cây xanh công viên, đất bãi đỗ xe và hạ tầng kỹ thuật, và đất giao thông.
-
-
Đất ngoài dân dụng (92.816,47m²) bao gồm:
-
-
-
Đất cây xanh cảnh quan (11.964,08m², chiếm 3,54%)
-
Đất dịch vụ du lịch (72.407,00m², chiếm 21,42%)
-
Đất bãi tắm, khu dịch vụ vui chơi giải trí (8.445,39m², chiếm 2,50%)
-
-
Cơ cấu sản phẩm bất động sản
Theo kế hoạch, dự án Vinhomes Phú Quý sẽ phát triển đa dạng các loại hình sản phẩm bất động sản, bao gồm:
- 235 căn nhà ở xã hội
-
-
350 căn nhà liền kề
-
56 căn biệt thự tứ lập
-
73 căn biệt thự đơn lập
-
2 tòa chung cư
-
Các công trình thương mại dịch vụ, khách sạn mini và các tiện ích khác
-
Quy mô dân số dự kiến tối đa của dự án là khoảng 2.720 người, với mật độ xây dựng hợp lý đảm bảo không gian sống thoáng đãng cho cư dân.
Hệ thống giao thông của dự án
Hệ thống giao thông của Vinhomes Phú Quý được quy hoạch một cách chi tiết và đồng bộ, đảm bảo khả năng kết nối linh hoạt và thuận tiện cho cư dân cũng như du khách.
Hệ thống giao thông đối ngoại
Về giao thông đối ngoại, dự án tiếp giáp với tuyến đường Võ Thị Sáu hiện trạng có lộ giới quy hoạch 15,0m, đóng vai trò quan trọng trong việc kết nối khu vực với các trục đường chính của thành phố Nha Trang.
Ngoài ra, dự án cũng nằm gần đường Trần Phú – một trong những trục đường chính và cũng là đường ven biển nổi tiếng của thành phố Nha Trang, giúp cư dân dễ dàng tiếp cận các dịch vụ tiện ích khác trong thành phố.
Hệ thống giao thông nội khu
Hệ thống giao thông nội khu của dự án được thiết kế khoa học với các tuyến đường cấp khu vực và cấp nội bộ:
Các tuyến đường cấp khu vực:
-
-
-
Tuyến đường D1 có lộ giới quy hoạch 23,0m
-
Tuyến đường N2 có lộ giới quy hoạch 23,0m
-
Tuyến đường N1 có lộ giới quy hoạch 21,25m
-
-
Các tuyến đường cấp nội bộ:
-
-
-
Các tuyến đường N3, N4, N7, D2, D3, D5, V1, V2, V3, V4, V5, V6, V7, V8, V9, V10, V11, V12 có lộ giới quy hoạch 15,0m
-
Tuyến đường N5 có lộ giới 9,0m
-
-
Về tiêu chuẩn thiết kế, đối với đường nội bộ có tốc độ thiết kế 20km/h, bán kính bó vỉa đạt Rmin = 8m. Đối với các đường gom và đường chính đô thị, bán kính bó vỉa đạt Rmin = 12m, đảm bảo an toàn giao thông tối đa cho cư dân.
Hệ thống giao thông của dự án được quy hoạch hoàn chỉnh, đảm bảo kết nối linh hoạt với các trục đường chính bên ngoài khu vực, lưu thông thuận tiện giữa các phân khu chức năng trong dự án, và đảm bảo an toàn với tốc độ phù hợp và bán kính đường cong tối ưu.
Quy hoạch hệ thống cảnh quan
Hệ thống cảnh quan của dự án Vinpearl Phú Quý được đặc biệt chú trọng, với mục tiêu tạo ra một môi trường sống xanh, sạch và thân thiện với thiên nhiên.
Chức năng của hệ thống cây xanh
Cây xanh trong khu quy hoạch Vinhomes Phú Quý được thiết kế đảm nhiệm nhiều chức năng quan trọng:
Thứ nhất, cây xanh đóng vai trò cải tạo vi khí hậu trong các khu bố trí dân cư. Được bố trí tại các khu vực dân cư, cây xanh giúp điều hòa không khí, giảm nhiệt độ và tạo bóng mát, mang lại môi trường sống trong lành, thoáng đãng cho cư dân.
Thứ hai, dự án hướng đến việc kết hợp cây xanh của hộ dân cư tạo thành một hệ thống cây xanh liên hoàn. Cây xanh trong các hộ dân cư được kết hợp với hệ thống cây xanh công cộng, hình thành một mạng lưới cây xanh liên tục trong toàn khu quy hoạch.
Thứ ba, hệ thống cây xanh được thiết kế để phục vụ sinh hoạt cộng đồng, tạo không gian thư giãn, giải trí cho cư dân sau những giờ làm việc mệt nhọc. Cây xanh được bố trí tại các khu vực công cộng như công viên, sân chơi, giúp cư dân có không gian thư giãn, nghỉ ngơi và giải trí sau những giờ làm việc căng thẳng.
Bố trí và quản lý hệ thống cây xanh
Hệ thống cây xanh trong dự án được bố trí một cách khoa học và đa dạng:
Cây xanh cách ly được bố trí dọc theo các trục đường với chức năng cách ly các nguồn ô nhiễm như: ô nhiễm về không khí, khói bụi… nảy sinh trong quá trình sinh hoạt của các hộ dân.
Cây xanh đường phố trong khu quy hoạch do chủ đầu tư trồng, quản lý chăm sóc và hưởng lợi. Ngoài ra, dự kiến trên toàn bộ vỉa hè của các trục giao thông chính đều trồng cây xanh ven đường nhằm tạo thành một hệ thống cây xanh hoàn chỉnh.
Hệ thống cây xanh đường phố được nghiên cứu và bố trí hợp lý đúng chức năng cho từng khu vực như: cây xanh tập trung, cây xanh cách ly, cây xanh tạo vi tiểu khí hậu… và tuân thủ các yêu cầu theo tiêu chuẩn hiện hành.
Việc quy hoạch và bố trí cây xanh trong dự án Vinhomes Phú Quý được thực hiện theo các tiêu chuẩn xây dựng và cảnh quan hiện hành, đảm bảo tính khoa học và đồng bộ trong thiết kế, phát huy tối đa công năng của từng loại hình cây xanh, và tăng tính thẩm mỹ và bền vững cho toàn dự án.
Đóng góp vào sự phát triển đô thị
Khi hoàn thành, dự án Vinhomes Phú Quý được kỳ vọng sẽ mang lại nhiều đóng góp tích cực cho sự phát triển của thành phố Nha Trang:
Thứ nhất, dự án góp phần tạo nên một không gian sống chất lượng cao, đáp ứng nhu cầu ở của khoảng 2.720 người, góp phần giải quyết nhu cầu nhà ở ngày càng tăng tại thành phố du lịch Nha Trang.
Thứ hai, với thiết kế hiện đại và đồng bộ, dự án sẽ góp phần nâng cao giá trị cảnh quan kiến trúc đô thị ven biển, tạo điểm nhấn cho khu vực phía Đông Nam thành phố Nha Trang.
Thứ ba, với việc kết hợp giữa khu nhà ở và các dịch vụ du lịch, khách sạn, thương mại, dự án sẽ góp phần đa dạng hóa các sản phẩm du lịch của thành phố Nha Trang, thu hút thêm khách du lịch, đặc biệt là khách du lịch cao cấp, góp phần thúc đẩy phát triển kinh tế địa phương.
Kết luận
Dự án Khu nhà ở Vinhomes Phú Quý là một dự án quy mô lớn và đầy tiềm năng tại thành phố Nha Trang. Với tổng vốn đầu tư hơn 7.453 tỷ đồng, dự án hứa hẹn sẽ mang lại diện mạo mới cho khu vực phía Đông Nam thành phố, góp phần khẳng định vị thế của Nha Trang như một điểm đến du lịch hàng đầu của Việt Nam.
Với vị trí đắc địa giáp biển Nha Trang, quy hoạch bài bản với các khu vực chức năng rõ ràng, hệ thống giao thông đồng bộ và hệ thống cảnh quan xanh mát, Vinpearl Phú Quý sẽ là nơi an cư lý tưởng cho cư dân, đồng thời là điểm đến hấp dẫn cho du khách.
Dự án còn thể hiện tầm nhìn dài hạn của chủ đầu tư Vingroup trong việc phát triển các dự án bền vững, kết hợp hài hòa giữa phát triển kinh tế với bảo vệ môi trường, giữa lợi ích của nhà đầu tư với lợi ích cộng đồng. Khi hoàn thành, Vinpearl Phú Quý sẽ không chỉ là một dự án bất động sản thành công mà còn là một minh chứng cho sự phát triển bền vững của thành phố Nha Trang nói riêng và tỉnh Khánh Hòa nói chung.
